Likwidacja wykusza w jadalni. Likwidacja podcienia przy wejściu. Wyrównanie ścian lukarn dachowych z elewacją frontowa i boczną. Likwidacja lub zamiana na pustaki szklane okien na ścianie bocznej garażu. Zmiana lokalizacji okien dachowych w pokoju nad garażem.
Likwidacja wykusza w jadalni. Likwidacja podcienia przy wejściu. Wyrównanie ścian lukarn dachowych z elewacją frontowa i boczną. Likwidacja lub zamiana na pustaki szklane okien na ścianie bocznej garażu. Zmiana lokalizacji okien dachowych w pokoju nad garażem.
Projekt ARCHON+ to kompletna dokumentacja techniczna zawierająca 3 egzemplarze projektu architektoniczno-budowlanego i 3 egzemplarze projektu technicznego.
Projekt architektoniczno-budowlany - zakres projektu architektonicznego
Projekt techniczny - zakres projektu konstrukcyjnego i projektów instalacji wewnętrznych
Projekt architektoniczno-budowlany stanowi część projektu budowlanego, który jest podstawą do wydania Decyzji o pozwoleniu na budowę. Projekt budowlany składa się z: projektu architektoniczno-budowlanego, projektu technicznego, projektu zagospodarowania działki, który wykonuje osoba adaptująca oraz opinii i uzgodnień. Projekt ARCHON+, tak jak każdy projekt typowy, wymaga adaptacji przez uprawnionego projektanta.
Wprowadzanie niewielkich zmian i modyfikacji w projektach typowych pozwala dostosować projekt do indywidualnych potrzeb jego przyszłych mieszkańców. Zmiany i modyfikacje wprowadzane są przez architekta adaptującego. We wszystkich projektach domów ARCHON+ można wprowadzać zmiany i modyfikacje. Każdy projekt zawiera bezpłatną zgodę na część podstawowych zmian.
Atrakcyjna cena i krótki czas oczekiwania na dokumentację, różnorodność oferty i wysoka jakość dokumentacji projektowej, profesjonalne doradztwo projektowe, aktualne koszty budowy na podstawie rzetelnie opracowanych kosztorysów, wizualizacje wnętrz oraz filmy i zdjęcia z realizacji, a ponadto społeczność budujących Domy ARCHON+, która dla wielu jest źródłem inspiracji i wymianą doświadczeń.
Powierzchnia domu to suma powierzchni użytkowych wszystkich pomieszczeń bez powierzchni użytkowej piwnicy, garażu, kotłowni i strychu. Na poddaszu, pod skosami dachu do powierzchni użytkowej uwzględniono powierzchnię wg zasady:
- tam gdzie wysokość pomieszczenia ma powyżej 2,2m powierzchnia jest liczona w 100%, - pomiędzy 1,4m a 2,2m (wysokości pomieszczenia) w 50%, - poniżej 1,4m powierzchnia nie jest brana pod uwagę.
Powierzchnia garażu
36,7 m²
Powierzchnia kotłowni
12,7 m²
Powierzchnia użytkowa
213,2 m²
Powierzchnia użytkowa wg obowiązującej normy PN-ISO 9836, to powierzchnia wszystkich pomieszczeń budynku liczona w świetle ścian. Zgodnie z obowiązującym stanem prawnym w pomieszczeniach na poddaszu (tj. ze skosami) powierzchnia użytkowa:
- powyżej 2,2m jest liczona w 100%,
- pomiędzy 1,4m a 2,2m w 50%,
- poniżej 1,4m nie jest brana pod uwagę.
Powierzchnia zabudowy
160,8 m²
Powierzchnia terenu, zajęta przez budynek w stanie wykończonym, bez tarasów, schodów zewnętrznych i podjazdów (PN-ISO 9836)
Powierzchnia podłóg
258,7 m²
W odróżnieniu od powierzchni netto i użytkowej liczona jest bez uwzględnienia wysokości pomieszczeń i pokazuje rzeczywistą wielkość podłogi w pomieszczeniach. Powierzchnia ta widnieje przy opisach rzutów w nawiasach.
Powierzchnia całkowita
294,9 m²
Powierzchnia całkowita budynku (wg. PN-ISO 9836).
Powierzchnia całkowita budynku (w m2) to suma powierzchni wszystkich kondygnacji budynku liczona po obrysie zewnętrznym każdej kondygnacji na poziomie posadzki.
Za kondygnacje przyjmuje się kondygnacje znajdujące się całkowicie lub częściowo poniżej poziomu terenu,oraz kondygnacje powyżej poziomu terenu.
Kubatura
941,0 m³
Objętość budynku, liczona zgodnie z normą PN-ISO-9836, czyli wraz z przegrodami zewnętrznymi i wewnętrznymi (ścianami, stropem, dachem i podmurówką).
Powierzchnia dachu
277,9 m²
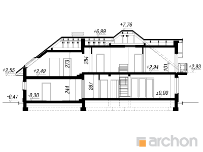
Wysokość budynku
8,23 m
Wysokość mierzona od poziomu terenu przy wejściu do budynku do kalenicy
Minimalne wymiary działki
25,7 x 17,8 m
Podane wartości nie uwzględniają powierzchni tarasów zewnętrznych.
Ważne! W zabudowie jednorodzinnej, na działce budowlanej o szerokości 16m lub mniejszej, dopuszcza się lokalizację budynku ścianą bez okien i drzwi w odległości 1,5m od granicy.
Minimalne wymiary po adaptacji
24,5 x 17,4 m
Likwidacja wykusza w jadalni. Likwidacja podcienia przy wejściu. Wyrównanie ścian lukarn dachowych z elewacją frontowa i boczną. Likwidacja lub zamiana na pustaki szklane okien na ścianie bocznej garażu. Zmiana lokalizacji okien dachowych w pokoju nad garażem.
Technologia i konstrukcja
Konstrukcja oraz propozycje materiałowe zastosowane w projekcie:
Dopuszczamy możliwość zmiany zastosowanych materiałów oraz rodzaju elementów konstrukcyjnych np. stropów, przy zachowaniu nie gorszych parametrów technicznych. Zgoda na wprowadzenie w/w zmian stanowi część dokumentacji technicznej. Zmiany wprowadzane są przez architekta z uprawnieniami podczas adaptacji projektu. Na wszystkie inne zmiany w projekcie wyrażamy bezpłatną zgodę.
ściany: pustak ceramiczny Porotherm 25 cm, styropian Termo Organika 14 cm, tynk
strop: płyta żelbetowa
ścianka kolankowa: 99 cm
dach: czterospadowy, nachylenie 38 st. , więźba drewniana, dachówka ceramiczna
rolety: zewnętrzne podtynkowe
Ogrzewanie
kocioł: na paliwo stałe + alternatywnie gazowy
W dokumentacji zaprojektowano kocioł na paliwo stałe. Do projektu dołączamy GRATIS projekt instalacji gazowej, który umożliwia zmianę sposobu ogrzewania domu na gazowy.
Dla każdego projektu dołączamy obrys budynku w skali 1:500, który można przerysować na kalkę i "przymierzyć" do mapy działki. Mapa przeznaczona do celów projektowych jest wykonana właśnie w tej skali. Odwrócona kalka pozwoli na sprawdzenie ustawienia domu w lustrzanym odbiciu.
W przypadku dodatkowych pytań prosimy o kontakt z Biurem Obsługi Klienta tel.+48 12 37 21 900. Podobne projekty dostępne w ofercie ARCHON+ można zobaczyć poniżej w zakładce PODOBNE.
Dołącz do Newslettera ARCHON+
Otrzymuj na bieżąco informacje o nowościach projektowych, wyjątkowych wnętrzach, inspirujących realizacjach oraz atrakcyjnych promocjach.
Informujemy, iż w celu optymalizacji treści dostępnych w naszym sklepie, dostosowania ich do Państwa indywidualnych potrzeb korzystamy z informacji zapisanych za pomocą plików cookies na urządzeniach końcowych użytkowników. Pliki cookies użytkownik może kontrolować za pomocą ustawień swojej przeglądarki internetowej. Dalsze korzystanie z naszego serwisu internetowego, bez zmiany ustawień przeglądarki internetowej oznacza, iż użytkownik akceptuje stosowanie plików cookies. Więcej informacji zawartych jest w polityce prywatności.
Strona archon.pl korzysta z plików cookies. Stosujemy pliki cookies w celu zapewnienia prawidłowego funkcjonowania serwisu. Możemy również wykorzystywać pliki cookies własne oraz naszych partnerów w celach analitycznych i marketingowych, w szczególności w celach personalizacji reklam do Twoich preferencji.
Korzystanie z preferencyjnych, analitycznych i reklamowych plików cookies wymaga zgody, którą możesz wyrazić, klikając „ZAAKCEPTUJ I PRZEJDŹ DO SERWISU”. Jeżeli chcesz dostosować swoje zgody dla nas i naszych partnerów, kliknij „Ustawienia”. Wyrażoną zgodę możesz wycofać w każdym momencie, zmieniając wybrane ustawienia. Jeżeli natomiast chcesz, żebyśmy stosowali tylko niezbędne pliki cookies, kliknij „Ustawienia” i zaakceptuj niezbędne pliki cookies.
Zarządzaj ustawieniami plików cookies
Pliki cookies to małe pliki tekstowe umieszczane na Twoim urządzeniu, których używamy, aby usprawnić Ci korzystanie z naszej strony internetowej i przedstawiać Ci reklamy dostosowane do Twoich preferencji.
Jeśli akceptujesz wszystkie pliki cookies, prosimy o kliknięcie w pole „ZAAKCEPTUJ I PRZEJDŹ DO SERWISU”. Jeżeli natomiast chcesz, abyśmy stosowali tylko niezbędne pliki cookies, prosimy o kliknięcie w pole „Zapisz”.
Możesz w dowolnym czasie zmienić ustawienia plików cookies naszych i naszych partnerów. Szczegółowe informacje dotyczące korzystania z plików cookies znajdziesz w naszej Polityce prywatności.
Te pliki są konieczne, abyś mógł poruszać się po naszej stronie internetowej i aby funkcjonowała ona prawidłowo. Pliki te są instalowane w szczególności na potrzeby zapamiętywania sesji logowania lub wypełniania formularzy, a także w celach związanych z ustawieniem opcji prywatności.
Używamy tych plików cookie do dostarczania Ci informacji statystycznych na temat naszej strony internetowej. Pomagają nam ustalić, które strony są bardziej, a które mniej popularne i zrozumieć, jak użytkownicy poruszają się po stronie. Pozyskane w ten sposób informacje wykorzystujemy do pomiaru i poprawy wydajności strony internetowej. Analityczne pliki zostaną umieszczone na Twoim urządzeniu tylko wtedy, gdy wyrazisz na to zgodę.
To usługa analityki internetowej świadczona przez Google LLC, 1600 Amphitheatre Parkway Mountain View, CA 94043, USA. Google Analytics wykorzystuje pliki cookie, aby umożliwić analizę korzystania z naszej witryny. Zebrane informacje na temat korzystania z naszej witryny internetowej i aplikacji są z reguły przesyłane na serwer Google w USA i tam przechowywane. Jednakże adres IP użytkownika jest skracany przez Google przed przeprowadzeniem analizy. Ponadto dane przesyłane do Google mogą zawierać zaszyfrowany adres e-mail użytkownika, a także dane dotyczące użytkowania pochodzące z analizy wewnętrznej.
Pod poniższymi linkami znajdują się informacje dotyczące
ochrony danych i warunków korzystania z Google Analytics.
(Centralplan 15, 11120 Sztokholm, Szwecja) wykorzystuje pliki cookie, aby analizować korzystanie z naszej witryny przez użytkowników w ramach kampanii reklamowej dla Banku ING.
Kliknij tutaj aby uzyskać więcej informacji na temat ochrony danych.
(Rosenborggade 15, 1130 Kopenhaga, Dania) wykorzystuje pliki cookie, aby analizować korzystanie z naszej witryny przez użytkowników w ramach kampanii reklamowej dla Banku PKO BP.
Kliknij tutaj aby uzyskać więcej informacji na temat ochrony danych.
Te pliki cookie mogą być wykorzystywane przez podmioty trzecie do stworzenia podstawowego profilu zainteresowań użytkownika i wyświetlania Ci odpowiednich reklam na innych stronach internetowych. Identyfikują one przeglądarkę i urządzenie użytkownika. Jeśli zdecydujesz się na odrzucenie tych plików cookie, nie będziemy mogli wyświetlać Ci reklam dopasowanych do Twoich preferencji.
Dane mogą być udostępniane Google LLC, więcej informacji można znaleźć tutaj.
Współdzielone z:
Korzystamy z Google Ads, usługi Google LLC, 1600 Amphitheatre Parkway, Mountain View, CA 94043, USA, w celu wyświetlania reklam w Google oraz za pośrednictwem sieci reklamowej Google. W tym celu wykorzystujemy informacje o zachowaniach podczas surfowania, aby dostosować reklamy do zainteresowań użytkownika. Ponadto dane przesyłane do Google Ads mogą obejmować zaszyfrowany adres e-mail użytkownika, a także dane dotyczące użytkowania z analiz wewnętrznych.
Więcej informacji na temat ochrony danych i warunków korzystania z Google znajdziesz tutaj.
Usługa Meta Platforms, Inc., 1601 Willow Road, Menlo Park, CA 94025, USA (Meta) lub, jeśli jesteś mieszkańcem UE, Meta Platforms Ireland Limited, 4 Grand Canal Square, Dublin 2, Irlandia (Meta ), umożliwia nam określenie grup docelowych dla reklam na platformach Meta Facebook i Instagram na podstawie odwiedzin na stronie i zachowań podczas surfowania. Z usługi tej korzystamy również w celu pomiaru efektywności internetowych kampanii marketingowych. Możemy śledzić działania użytkowników po zobaczeniu i/lub kliknięciu reklamy na Facebooku lub Instagramie, a następnie złożeniu zamówienia. Do transmisji do Facebooka używamy plików cookie i interfejsów serwer-serwer.
Jeżeli logujesz się na Facebooku/Instagramie lub jesteś już zalogowany na Facebooku/Instagramie, Twoja wizyta na stronie internetowej zostanie odnotowana w Twoim profilu. Zebrane dane użytkowników są dla nas anonimowe i tym samym nie pozwalają na wyciąganie jakichkolwiek wniosków na temat tożsamości użytkownika. Dane te są jednak przechowywane i przetwarzane przez Meta, aby można było wyciągnąć wnioski na temat odpowiedniego profilu użytkownika. Przetwarzanie danych przez Meta odbywa się zgodnie z
polityką Meta wykorzystania danych. Jeśli nie jesteś członkiem Facebooka/Instagramu, przetwarzanie danych nie ma na Ciebie wpływu.
Na naszej stronie internetowej współpracujemy z Criteo, spółką z ograniczoną odpowiedzialnością z siedzibą w Paryżu pod adresem 32 rue Blanche, 75009, FRANCJA, w celu prezentowania naszym gościom reklam dostosowanych do ich zainteresowań.
W tym celu w przeglądarce użytkownika serwisu zapisywane są tzw. „cookies” (pliki tekstowe), które umożliwiają rozpoznanie użytkownika w sieci reklamowej Criteo. Te pliki cookie sprawdzają, jakie produkty przeglądasz, jaki masz koszyk i/lub jakie produkty kupiłeś. Oprócz tego dane gromadzone przez Criteo mogą obejmować Twój adres IP i zaszyfrowany adres e-mail. Criteo może wykorzystywać te informacje do raportowania nam wyników kampanii i wyświetlania odpowiednich reklam produktów w naszym sklepie internetowym, a także na stronach zewnętrznych (retargeting). W tym drugim celu Criteo współpracuje również z innymi partnerami. Przegląd sieci partnerskiej Criteo znajdziesz tutaj
Więcej informacji na temat prywatności w Criteo znajdziesz tutaj.
W ramach współpracy z INIS Sp. z o.o. świadczącej dla nas usługi marketingowe, wykorzystywane są tzw. "cookies" (pliki tekstowe) zapisywane w przeglądarce użytkownika, które umożliwiają rozpoznanie użytkownika w sieci reklamowej, w celu prezentowania naszym gościom reklam dostosowanych do ich zainteresowań. Cookie przechowywane jest maksymalnie przez 30 dni, należy do kategorii ciastek niezbędnych. Więcej informacji na temat prywatności w INIS znajdziesz tutaj.