Projekt domu  Dom w mircie 4 (B)

Cena z kodem 2 570 zł (2 089,43 netto)
gotowy projekt Dom w mircie 4 (B) widok 1
Dom do zabudowy bliźniaczej z poddaszem użytkowym
5 pokoi, kuchnia, 2 łazienki, kotłownia, garderoba, kominek, garaż

  • Powierzchnia domu 110,15 m²
  • Powierzchnia garażu 16,97 m²
  • Powierzchnia kotłowni 4,12 m²
  • Min. wymiary działki 16,13 x 16,22 m


Masz pytania?
Zadzwoń
+48 12 37 21 900 pn-pt 8-19, sb. 9-13

GRATIS EXTRA DODATKI
  • Teczka na dokumenty
  • Bezpłatna dostawa
  • Zgoda na zmiany
  • Charakterystyka energetyczna
  • Zestawienie materiałów do projektów posiadających kosztorys budowlany
RABATY NA PRODUKTY DODATKOWE
  • Garaż z kodem rabatowym GARAZ30%
  • Gotowe projekty instalacji z kodem rabatowym
  • Tablica Informacyjno - Budowlana 30 zł
  • Dziennik Budowy 20 zł
Projekt ARCHON+ to kompletna dokumentacja techniczna zawierająca 3 egzemplarze projektu architektoniczno-budowlanego i 3 egzemplarze projektu technicznego.
  • Projekt architektoniczno-budowlany - zakres projektu architektonicznego
  • Projekt techniczny - zakres projektu konstrukcyjnego i projektów instalacji wewnętrznych
Projekt architektoniczno-budowlany stanowi część projektu budowlanego, który jest podstawą do wydania Decyzji o pozwoleniu na budowę. Projekt budowlany składa się z: projektu architektoniczno-budowlanego, projektu technicznego, projektu zagospodarowania działki, który wykonuje osoba adaptująca oraz opinii i uzgodnień. Projekt ARCHON+, tak jak każdy projekt typowy, wymaga adaptacji przez uprawnionego projektanta.
Wprowadzanie niewielkich zmian i modyfikacji w projektach typowych pozwala dostosować projekt do indywidualnych potrzeb jego przyszłych mieszkańców. Zmiany i modyfikacje wprowadzane są przez architekta adaptującego. We wszystkich projektach domów ARCHON+ można wprowadzać zmiany i modyfikacje. Każdy projekt zawiera bezpłatną zgodę na część podstawowych zmian.

Atrakcyjna cena i krótki czas oczekiwania na dokumentację, różnorodność oferty i wysoka jakość dokumentacji projektowej, profesjonalne doradztwo projektowe, aktualne koszty budowy na podstawie rzetelnie opracowanych kosztorysów, wizualizacje wnętrz oraz filmy i zdjęcia z realizacji, a ponadto społeczność budujących Domy ARCHON+, która dla wielu jest źródłem inspiracji i wymianą doświadczeń.

Zamawiając Projekt Domu ARCHON+ nie płacisz za koszty dostawy. Zamówienia realizujemy darmową przesyłką do paczkomatów lub przez kuriera. To Ty decydujesz, która forma bardziej Ci odpowiada.
Zapewniamy Ci bezpieczne zakupy w ARCHON+ z 90 dniowym prawem do wymiany zakupionego projektu domu. Gwarantujemy również możliwość zwrotu projektu do 30 dni od daty zakupu.
Uwaga! Wszystkie podane informacje dotyczą 1 segmentu.

PARTER
70,78 (71,35)
1. Wiatrołap 3,73
2. Hol 6,23
3. Kuchnia 8,11
4. Salon + Jadalnia 24,34
5. Schody 3,76
6. Łazienka 3,52 (4,09)
7. Garaż 16,97
8. Kotłownia 4,12
PODDASZE
60,46 (68,54)
1. Schody 1,51 (1,51)
2. Pokój 9,43 (10,78)
3. Garderoba 4,48 (5,82)
4. Łazienka 7,03 (8,16)
5. Hol 5,79 (5,79)
6. Pokój 12,68 (14,17)
7. Pokój 9,86 (11,14)
8. Pokój 9,68 (11,17)

Dane projektu Domu w mircie 4 (B)

Powierzchnie i wymiary

Powierzchnia domu to suma powierzchni użytkowych wszystkich pomieszczeń bez powierzchni użytkowej piwnicy, garażu, kotłowni i strychu. Na poddaszu, pod skosami dachu do powierzchni użytkowej uwzględniono powierzchnię wg zasady:
- tam gdzie wysokość pomieszczenia ma powyżej 2,2m powierzchnia jest liczona w 100%,
- pomiędzy 1,4m a 2,2m (wysokości pomieszczenia) w 50%,
- poniżej 1,4m powierzchnia nie jest brana pod uwagę.

Powierzchnia użytkowa wg obowiązującej normy PN-ISO 9836, to powierzchnia wszystkich pomieszczeń budynku liczona w świetle ścian. Zgodnie z obowiązującym stanem prawnym w pomieszczeniach na poddaszu (tj. ze skosami) powierzchnia użytkowa:
- powyżej 2,2m jest liczona w 100%,
- pomiędzy 1,4m a 2,2m w 50%,
- poniżej 1,4m nie jest brana pod uwagę.

Powierzchnia terenu, zajęta przez budynek w stanie wykończonym, bez tarasów, schodów zewnętrznych i podjazdów (PN-ISO 9836)
W odróżnieniu od powierzchni netto i użytkowej liczona jest bez uwzględnienia wysokości pomieszczeń i pokazuje rzeczywistą wielkość podłogi w pomieszczeniach. Powierzchnia ta widnieje przy opisach rzutów w nawiasach.
Powierzchnia całkowita budynku (wg. PN-ISO 9836).
Powierzchnia całkowita budynku (w m2) to suma powierzchni wszystkich kondygnacji budynku liczona po obrysie zewnętrznym każdej kondygnacji na poziomie posadzki.
Za kondygnacje przyjmuje się kondygnacje znajdujące się całkowicie lub częściowo poniżej poziomu terenu,oraz kondygnacje powyżej poziomu terenu.
Objętość budynku, liczona zgodnie z normą PN-ISO-9836, czyli wraz z przegrodami zewnętrznymi i wewnętrznymi (ścianami, stropem, dachem i podmurówką).
Wysokość mierzona od poziomu terenu przy wejściu do budynku do kalenicy
Podane wartości nie uwzględniają powierzchni tarasów zewnętrznych.
Ważne! W zabudowie jednorodzinnej, na działce budowlanej o szerokości 16m lub mniejszej, dopuszcza się lokalizację budynku ścianą bez okien i drzwi w odległości 1,5m od granicy.

Technologia i konstrukcja

Dopuszczamy możliwość zmiany zastosowanych materiałów oraz rodzaju elementów konstrukcyjnych np. stropów, przy zachowaniu nie gorszych parametrów technicznych. Zgoda na wprowadzenie w/w zmian stanowi część dokumentacji technicznej.
Zmiany wprowadzane są przez architekta z uprawnieniami podczas adaptacji projektu. Na wszystkie inne zmiany w projekcie wyrażamy bezpłatną zgodę.
ściany: pustak ceramiczny Porotherm 25 cm, styropian Termo Organika 20 cm, tynk
strop: płyta żelbetowa
ścianka kolankowa: 175 cm
dach: czterospadowy, nachylenie 35 st. , więźba drewniana, dachówka ceramiczna
kocioł: gazowy

Realizacje naszych Klientów (1)

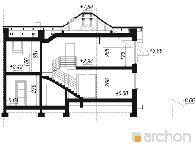
Przekrój

gotowy projekt Dom w mircie 4 (B) przekroj budynku

Obrys

polnoc

Dla każdego projektu dołączamy obrys budynku w skali 1:500, który można przerysować na kalkę i "przymierzyć" do mapy działki. Mapa przeznaczona do celów projektowych jest wykonana właśnie w tej skali. Odwrócona kalka pozwoli na sprawdzenie ustawienia domu w lustrzanym odbiciu.

pobierz obrys budynku

Elewacje

Elewacja frontowa projekt dom w mircie 4 b ver 2 8713dc3e56d3198a8c0884ab635c00c5  264 Elewacja frontowa
Elewacja boczna projekt dom w mircie 4 b ver 2 ee4d5b33f80eca539ee0fd89889e0258  265 Elewacja boczna
Elewacja boczna projekt dom w mircie 4 b ver 2 5eb268307eb9ea1f8df4d0d66d63c651  266 Elewacja boczna
Elewacja ogrodowa projekt dom w mircie 4 b ver 2 f3b4d5f126580075a3f4f6addc1ac1d7  267 Elewacja ogrodowa

Dom z garażem i poddaszem użytkowym przeznaczony do zabudowy bliźniaczej. Przestrzeń dzienna parteru to jasny salon z kominkiem i wyjściem na taras połączony z półotwartą kuchnią. Oprócz tego na parterze przewidziano łazienkę z przejściem do pomieszczenia gospodarczego, gdzie znajduje się kocioł gazowy i miejsce na pralkę. Na poddaszu zaprojektowana została strefa nocna mieszkańców: cztery duże pokoje (w tym jeden z garderobą) oraz wygodna łazienka z natryskiem i narożną wanną. Dzięki wysokiej ściance kolankowej pomieszczenia poddasza są ustawne i przestronne.

Dołącz do Newslettera ARCHON+

Otrzymuj na bieżąco informacje o nowościach projektowych, wyjątkowych wnętrzach, inspirujących realizacjach oraz atrakcyjnych promocjach.

Messenger Czat z DoradcąDostępny
 +48 12 37 21 900