gotowy projekt Dom w gunnerach 2 (B) widok 1
Pow. domu 106,16 m²
Pow. garażu 17,90 m²
Pow. kotłowni 6,05 m²
pokoje 5
łazienki i WC 2
Min. wym. działki 13,68 x 17,8 m
Pow. domu 106,16 m²
Pow. garażu 17,90 m²
Pow. kotłowni 6,05 m²
pokoje 5
łazienki i WC 2
Min. wym. działki 13,68 x 17,8 m
Dom w gunnerach 2 (B)
106,16 m² 17,90 m² 6,05 m²
gotowy projekt Dom w gunnerach 2 (B) widok 1
Dom do zabudowy bliźniaczej z poddaszem użytkowym
5 pokoi, kuchnia, łazienka, toaleta, kotłownia, pralnia, garderoba, kominek, garaż

Cena z kodem rabatowym ONLINE200 Jak skorzystać z kodu?
4 790 zł z VAT 23% (3 894,31 zł netto)
na zamówienia przez www.archon.pl
Cena regularna 4 990 zł
Najniższa cena z 30 dni przed obniżką 4 740 zł
  ZAMÓW PROJEKT
Projekt dostępny od ręki



Masz pytania?
Zadzwoń
+48 12 37 21 900 pn-pt 8-19, sb. 9-13
Uwaga! Wszystkie podane informacje dotyczą 1 segmentu.
Pokaż powierzchnie pomieszczeń na rzucie
Pokaż lustrzane odbicie
lupa
PARTER
65,25 (66,17)
1. Wiatrołap 5,09
2. Salon + Jadalnia 25,79
3. Kuchnia 9,06
4. Toaleta 1,36 (2,28)
5. Kotłownia 6,05
6. Garaż 17,90
Pokaż powierzchnie pomieszczeń na rzucie
Pokaż lustrzane odbicie
lupa
PODDASZE
64,86 (70,32)
1. Hol 7,07
2. Pokój 8,51 (9,48)
3. Pokój 8,85 (9,82)
4. Garderoba 3,29 (3,29)
5. Pokój 14,30 (14,93)
6. Pokój 9,32 (10,89)
7. Łazienka 5,78 (7,10)
8. Pralnia 2,70 (2,70)
9. Schody 5,04

Dane projektu Domu w gunnerach 2 (B)

Powierzchnie i wymiary

Powierzchnia domu to suma powierzchni użytkowych wszystkich pomieszczeń bez powierzchni użytkowej piwnicy, garażu, kotłowni i strychu. Na poddaszu, pod skosami dachu do powierzchni użytkowej uwzględniono powierzchnię wg zasady:
- tam gdzie wysokość pomieszczenia ma powyżej 2,2m powierzchnia jest liczona w 100%,
- pomiędzy 1,4m a 2,2m (wysokości pomieszczenia) w 50%,
- poniżej 1,4m powierzchnia nie jest brana pod uwagę.

Powierzchnia użytkowa wg obowiązującej normy PN-ISO 9836, to powierzchnia wszystkich pomieszczeń budynku liczona w świetle ścian. Zgodnie z obowiązującym stanem prawnym w pomieszczeniach na poddaszu (tj. ze skosami) powierzchnia użytkowa:
- powyżej 2,2m jest liczona w 100%,
- pomiędzy 1,4m a 2,2m w 50%,
- poniżej 1,4m nie jest brana pod uwagę.

Powierzchnia terenu, zajęta przez budynek w stanie wykończonym, bez tarasów, schodów zewnętrznych i podjazdów (PN-ISO 9836)
W odróżnieniu od powierzchni netto i użytkowej liczona jest bez uwzględnienia wysokości pomieszczeń i pokazuje rzeczywistą wielkość podłogi w pomieszczeniach. Powierzchnia ta widnieje przy opisach rzutów w nawiasach.
Powierzchnia całkowita budynku (wg. PN-ISO 9836).
Powierzchnia całkowita budynku (w m2) to suma powierzchni wszystkich kondygnacji budynku liczona po obrysie zewnętrznym każdej kondygnacji na poziomie posadzki.
Za kondygnacje przyjmuje się kondygnacje znajdujące się całkowicie lub częściowo poniżej poziomu terenu,oraz kondygnacje powyżej poziomu terenu.
Objętość budynku, liczona zgodnie z normą PN-ISO-9836, czyli wraz z przegrodami zewnętrznymi i wewnętrznymi (ścianami, stropem, dachem i podmurówką).
Wysokość mierzona od poziomu terenu przy wejściu do budynku do kalenicy
Podane wartości nie uwzględniają powierzchni tarasów zewnętrznych.
Ważne! W zabudowie jednorodzinnej, na działce budowlanej o szerokości 16m lub mniejszej, dopuszcza się lokalizację budynku ścianą bez okien i drzwi w odległości 1,5m od granicy.

Technologia i konstrukcja

Eurokody
Konstrukcja zgodna z normami Eurokod więcej >>
Dopuszczamy możliwość zmiany zastosowanych materiałów oraz rodzaju elementów konstrukcyjnych np. stropów, przy zachowaniu nie gorszych parametrów technicznych. Zgoda na wprowadzenie w/w zmian stanowi część dokumentacji technicznej.
Zmiany wprowadzane są przez architekta z uprawnieniami podczas adaptacji projektu. Na wszystkie inne zmiany w projekcie wyrażamy bezpłatną zgodę.
ściany: bloczek z betonu komórkowego H+H 24 cm, styropian Termo Organika 20 cm, tynk
strop: płyta żelbetowa
ścianka kolankowa: 140 cm
dach: dwuspadowy, nachylenie 38 st. , więźba drewniana, blacha, okno dachowe FAKRO
brama garażowa: HÖRMANN
kocioł: na pellet + alternatywnie gazowy

W dokumentacji zaprojektowano kocioł na paliwo stałe. Do projektu dołączamy GRATIS projekt instalacji gazowej, który umożliwia zmianę sposobu ogrzewania domu na gazowy.
pompa ciepła POMPA CIEPŁA
Planujesz POMPĘ CIEPŁA w swoim domu? Zamów dodatkowo projekt pompy ciepła (powietrze - woda) i ogrzewania podłogowego, jako alternatywne opracowanie. więcej >>

ogrzewanie podłogowe: zastosowano we wszystkich pomieszczeniach mieszkalnych
wentylacja: grawitacyjna

Planujesz WENTYLACJĘ MECHANICZNĄ w swoim domu? Zamów dodatkowo projekt wentylacji mechanicznej z odzyskiem ciepła (rekuperacją), jako alternatywne opracowanie. więcej >>

Energooszczędność

Projekt zgodny z aktualnymi WT 2021 dot. energooszczędności budynków więcej >>
EUco+w to wskaźnik zapotrzebowania budynku na energię użytkową do ogrzewania i wentylacji.
Szacunkowa wartość EP - dla założeń projektu typowego.
EP to wskaźnik zapotrzebowania budynku na nieodnawialną energię pierwotną.
Standard WT 2021 to lepsza izolacyjność termiczna ścian, podłóg, dachu oraz energooszczędna stolarka zewnętrzna.
Na wartość wskaźnika EP ma wpływ lokalizacja geograficzna (w zależności od uwzględnienia odpowiedniej stacji meteorologicznej otrzymamy różne wyniki, zależne od warunków klimatycznych panujących w tej części Polski, w której realizujemy inwestycję), zmiana założeń projektowych, czy też zmiana orientacji budynku względem stron świata.
Maksymalna wartość EP wymagana według Warunków Technicznych:
WT2017 - 95 [kWh/(m2*rok)]
WT2021 - 70 [kWh/(m2*rok)]
Szacunkowa wartość EP - dla założeń projektu typowego.
EP to wskaźnik zapotrzebowania budynku na nieodnawialną energię pierwotną.
Standard WT 2021 to lepsza izolacyjność termiczna ścian, podłóg, dachu oraz energooszczędna stolarka zewnętrzna.
Na wartość wskaźnika EP ma wpływ lokalizacja geograficzna (w zależności od uwzględnienia odpowiedniej stacji meteorologicznej otrzymamy różne wyniki, zależne od warunków klimatycznych panujących w tej części Polski, w której realizujemy inwestycję), zmiana założeń projektowych, czy też zmiana orientacji budynku względem stron świata.
Maksymalna wartość EP wymagana według Warunków Technicznych:
WT2017 - 95 [kWh/(m2*rok)]
WT2021 - 70 [kWh/(m2*rok)]

Termoizolacyjność

Uścian to współczynnik przenikania ciepła dla ścian zewnętrznych

Maksymalna wartość Uściany wymagana według Warunków Technicznych:
WT2017 - 0,23 [W/(m2*K)]
WT2021 - 0,20 [W/(m2*K)]
Udachu to współczynnik przenikania ciepła dla dachu

Maksymalna wartość Udachu wymagana według Warunków Technicznych:
WT2017 - 0,18 [W/(m2*K)]
WT2021 - 0,15 [W/(m2*K)]
U okien to współczynnik przenikania ciepła dla okien i drzwi balkonowych

Maksymalna wartość U okien wymagana według Warunków Technicznych:
WT2017 - 1,1 [W/(m2*K)]
WT2021 - 0,9 [W/(m2*K)]

Realizacje naszych Klientów (1)

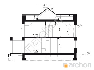
Przekrój

gotowy projekt Dom w gunnerach 2 (B) przekroj budynku

Obrys

polnoc

Dla każdego projektu dołączamy obrys budynku w skali 1:500, który można przerysować na kalkę i "przymierzyć" do mapy działki. Mapa przeznaczona do celów projektowych jest wykonana właśnie w tej skali. Odwrócona kalka pozwoli na sprawdzenie ustawienia domu w lustrzanym odbiciu.

pobierz obrys budynku

Prezentujemy Państwu projekt nowoczesnego domu do zabudowy bliźniaczej, o prostej, proporcjonalnej bryle, której wnętrze wyróżnia się funkcjonalnym programem użytkowym. Projekt polecany jest zarówno do realizacji indywidualnych, jak i deweloperskich, doskonale wpisuje się w płytkie działki. Wykończenie zewnętrzne odpowiada aktualnym trendom, atrakcyjny wygląd zapewniają starannie zakomponowane elewacje i odpowiednio dobrane detale. Na powierzchni ok. 107 m2 rozmieszczono pełny program funkcjonalny, gwarantujący wszystkim mieszkańcom wygodne użytkowanie domu. Na parterze mieści się przestronna strefa dzienna, jej nowoczesny charakter podkreśla przesuwne przeszklenie, otwierające wnętrze na taras. Został on atrakcyjnie przesłonięty pergolą i z pewnością stanie się ulubionym miejscem letniego wypoczynku. Z salonem płynnie łączy się jadalnia, w której przy oknie można rozłożyć duży, rodzinny stół. Jasna, ustawna kuchnia to wygodne miejsce codziennej pracy, w jej programie przewidziano wysoką zabudowę, obszerny blat oraz dodatkowe miejsce spożywania posiłków. Na parterze wygospodarowano również miejsce na ogólnodostępną toaletę. Poprzez wiatrołap mieszkańcy mogą szybko przejść do garażu, z którego dostępna jest kotłownia na paliwo stałe. Na poddaszu znajduje się strefa prywatna z sypialniami domowników. Zaprojektowano tutaj cztery pokoje, łazienkę z miejscem zarówno na wannę, jak i prysznic, wspólną garderobę oraz pralnię. „Dom w gunnerach 2 (B)” należy do kolekcji: projekty domów z poddaszem użytkowym, projekty małych domów, projekty domów na wąską działkę, projekty domów bliźniaczych.

Dołącz do Newslettera ARCHON+

Otrzymuj na bieżąco informacje o nowościach projektowych, wyjątkowych wnętrzach, inspirujących realizacjach oraz atrakcyjnych promocjach.

Messenger Czat z DoradcąDostępny
 +48 12 37 21 900
 ZAMÓW PROJEKT

Skontaktuj się z nami!

+48 12 37 21 900
Ikona zamów rozmowę z doradcą Zamów rozmowę z doradcą
Czat z Doradcą
Messenger Napisz do nas